Die Struktur eines Moduls basiert auf einem Stahlrahmen mit vier Eckstützen sowie Boden- und Deckenrahmen – diese Konstruktion übernimmt die gesamte Lastabtragung.
Zusätzliche Mittelstützen
Bei langen Modulen werden je nach statischen Anforderungen zusätzliche Mittelstützen eingebracht.
Zusammenstellung der Module
Die Zusammenstellung der Module kann längs- oder stirnseitig erfolgen.
Wirtschaftliche Vorfertigung
Die Bildung möglichst gleich gerasterter Einheiten erlaubt uns eine besonders wirtschaftliche serielle Vorfertigung.
Hochpräzise Vorfertigung
Bis zu 95 % Ihrer Gebäudeteile werden in unseren modernen, umweltfreundlichen Werken hochpräzise vorgefertigt und „Just-in-Sequence“ montagebereit zur Baustelle geliefert.
Planungs - Grundlagen im Überblick
Auf bimobject finden Sie als Planer alles, was zu beachten ist, damit im Ergebnis ein nachhaltiges, langlebiges, ansprechendes und nicht zuletzt wirtschaftliches Bauwerk entsteht.
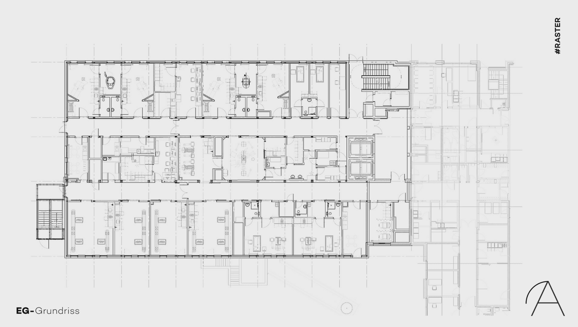
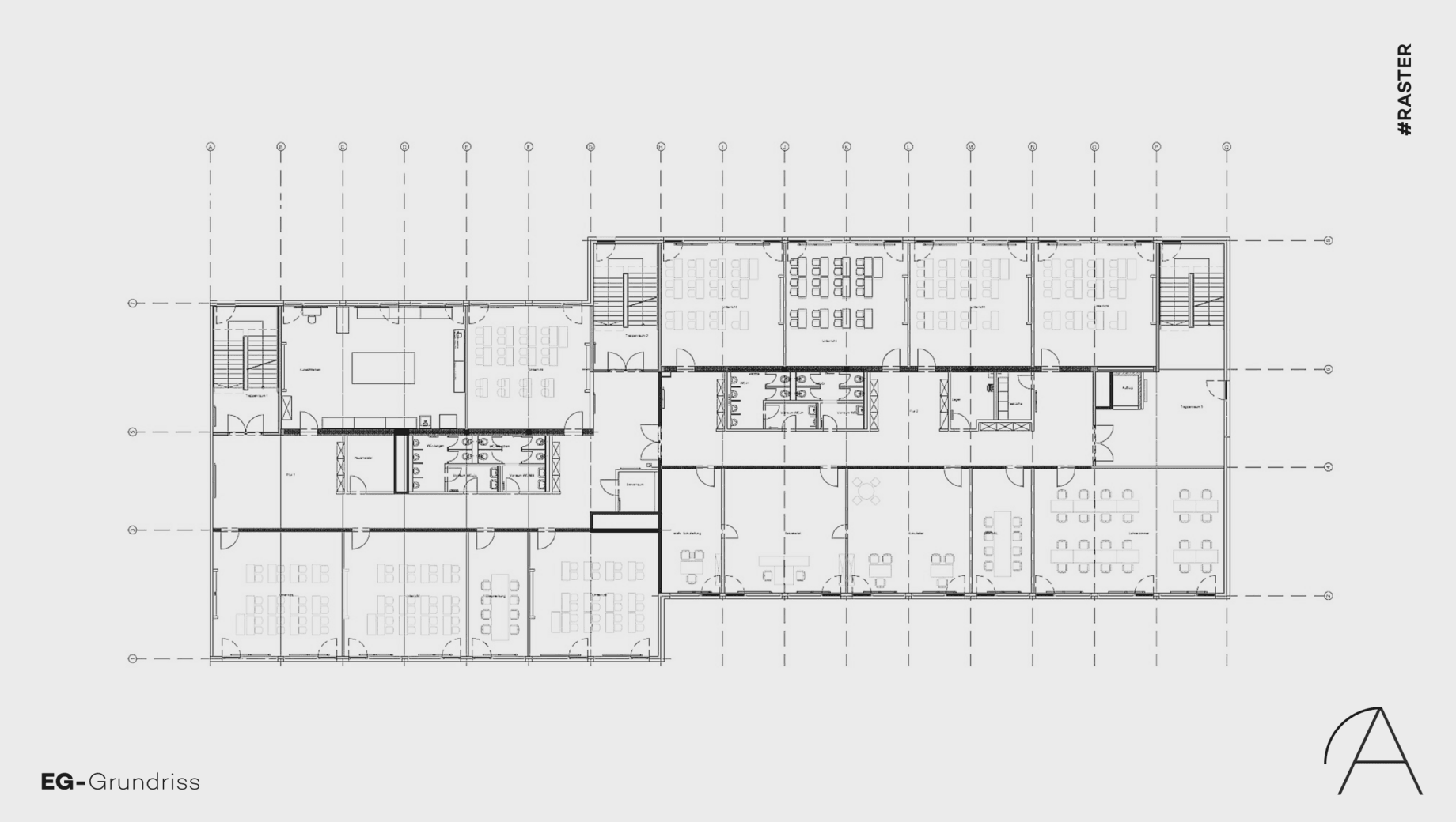
ERRASTER
Alles im Raster
Wiederholung schafft Effizienz
individuelle bedürfnisse
Für uns sind die individuellen Bedürfnisse des Bauherrn und Planers der Maßstab. Daher sind selbstverständlich modulübergreifende Anordnungen der raumbildenden Innenwände möglich. Auch Fassadenaufbauten, Innengestaltung und Raumaufteilung sowie Haustechnik führen wir immer entsprechend Ihrer Nutzungsanforderung aus.
Impressionen – Grundriss-Varianten
Diese Flexibilität bietet uns die Möglichkeit, die unterschiedlichsten Gebäudetypen zu konzipieren. Dabei trägt die industrielle Vorfertigung unserer Module nicht nur zur hohen Qualität und Detailgenauigkeit bei, sondern reduziert auch Ihre Bauzeit maßgeblich.
Nachgefragt bei prof. xaver Egger
Im Gespräch gibt Prof. Xaver Egger Einblicke in seine Erfahrungen mit der modularen Bauweise und der Zusammenarbeit mit KLEUSBERG.
Noch fragen? Wir sind bereit!
Sie wollen mehr zum Thema Architektur wissen oder ein konkretes Projekt besprechen? Lassen Sie uns reden – unkompliziert und persönlich.
Bleiben Sie up to date! Abonnieren Sie unseren Newsletter und erfahren Sie von spannenden Projekten, aktuellen Trends und exklusiven Einblicken. Einfach anmelden und nichts verpassen!
Mitarbeiter Instandhaltung (m/w/d)– Bereich Elektronik